Nazareth Niketan
Chakala, Andheri (East)
 
 
Designed to create a statement by itself, Nazareth Niketan stands true to its name providing its user a sense of getting uplifted into the heights of luxury and shining in its pure living.
7 Storey
1, 1 - 1/2, 2 & 3 BHK
Possession Q2 2017
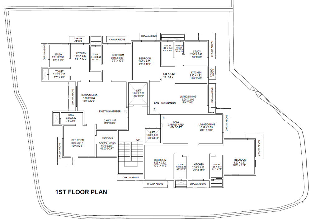
FLOOR PLAN
AMENITIES
 
Flooring
2 X 2 Vitrified Tiles
Paint
One Selective Wall with Texture/Play Paint
Windows
Jindal Aluminium Anodized Sliding Windows with Tinted Glass
           
Kitchen Tiles
Designer Ceramic Tiles upto Beam Bottom
Kitchen Platform
Parallel Kitchen Platform with Marble Partition
Geyser
Gas Geyser of reputed brand subject to approval
           
Solar System
Solar Lighting System for Common Area
Terrace
Green Roof Terrace with Lift Opening on terrace floor with Meditation Court & Yoga Area
Security
Intercom & CCTV
           
HALL & BEDROOMS
  2 X 2 VITRIFIED TILES with latest design and well-known brand
  Wall finished with POP & PLASTIC/LUSTER paints along with one selective wall of texture paint/play paint
  Concealed Copper Wiring Of Sufficient Gauge Of Reputed Brand & Modular Switches Of Anchor/Legrand
  Jindal aluminum anodized sliding windows of heavy gauge with tinted glass will be provided with safety grill as per MCGM norms and mosquitos net
 
KITCHEN
  Parallel granite platform with marble partition with tiles for easy cleaning along with S.S. SINK OF NIRALI or equivalent brand
  Designer ceramic tiles above kitchen platform up to beam bottom height
 
TOILETS
  Water proofing in toilet carried out by professional agency with guaranty
  Non-corrosive and durable CPVC/UPVC pipes of reputed brand for concealed plumbing
  Gas Geyser in each bathroom as per MCGM Norms/Subject to CFO Approval
 
GENERAL AMENITIES (INTERNAL-EXTERNAL)
  Earth quake resistant RCC structure with base resting on solid rock strata
  Aesthetic elevation
  Safe height compound wall gate & security cabin provision
  Entrance lobby of latest trend and design
  Solar lighting system will be provided for common passage lighting
  Green Roof accessible with lift
  High speed passenger lifts of OTIS or equivalent and common area lightin
  Open space pavement with checkered finishing
  Intercom / CCTV / others latest security system. Intercom will be provided in watchman cabin as well
  Automatic on/off PUMP, provision for boring and MCGM water along with water management system
  Lift opening on Terrace Floor
 
LOCATION MAP
 
 
 
PREFERRED BRANDS